Okna drzwi i fasady - System drzwi podnoszono-przesuwnych MB-77HS
Drzwi podnoszono-przesuwne to doskonałe rozwiązanie jako zabudowa łącząca pokoje lub ogrody zimowe z otoczeniem zewnętrznym, zapewniając wygodne wyjścia na balkon, taras lub otwartą przestrzeń ogrodu.
Umożliwiają bardzo dobry kontakt z otoczeniem, a w pozycji otwartej nie zajmują miejsca we wnętrzu pomieszczenia, co dodatkowo zwiększa komfort użytkowania. System MB-77HS należy do produktów o najlepszych parametrach i spełnia wszelkie wymagania stawiane tej grupie produktów. Posiada dwa różniące się izolacją termiczną warianty konstrukcji: ST i HI. Budowa profili pozwala na wykonywanie ekskluzywnych drzwi o dużych gabarytach, wypełnionych szkłem jedno- lub dwukomorowym, a zastosowane materiały i rozwiązania techniczne pomagają osiągnąć wysoki stopień ochrony cieplnej i akustycznej. Dzięki swym właściwościom system ten doskonale sprawdza się zarówno w budynkach jednorodzinnych, jak i w komfortowych apartamentach lub hotelach.
Funkcjonalność, estetyka, zalety konstrukcji
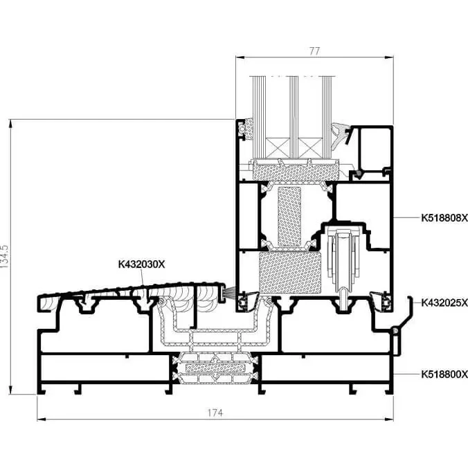
- wytrzymałe i smukłe profile umożliwiają budowę niskoprogowych drzwi o ciężarze skrzydła do 600 kg, wysokości do 3,24 m i szerokości do 3,3 m
- dostępne rozwiązania z wąskim słupkiem, w których widoczna szerokość kształtowników na styku skrzydeł drzwi wynosi tylko 47,5 mm lub 50 mm
- ościeżnice dostępne są w dwóch wersjach: 2-szynowe oraz 3-szynowe
- wygodne rozwiązania z niskim progiem oraz z progiem płaskim, zlicowanym z tarasem
- możliwość wykonywania drzwi narożnych 90 i 270 stopni z ruchomym słupkiem
- szeroki zakres wypełnień, uwzględniający stosowanie zestawów jedno- lub dwukomorowych, a także przekładki termiczne oraz dodatkowe akcesoria i wkłady izolacyjne, pozwalają osiągnąć bardzo dobre parametry cieplne i akustyczne konstrukcji
- listwy przyszybowe w trzech wersjach wyglądu: Standard (prostokątne), Prestige (zaokrąglone) i Style (kształtowe)
- zamknięty kształt listew do szklenia oraz detale antywyważeniowe pozwalają uzyskać podwyższone własności antywłamaniowe bez zmian istotnych elementów konstrukcyjnych drzwi
- specjalne kształty uszczelki przymykowej i przyszybowej oraz odpowiednie okucia zapewniają wysoką szczelność na przenikanie przez drzwi wody i powietrza
- profile dostosowane są do montażu wielu dostępnych na rynku okuć ryglowanych ręcznie i za pomocą automatyki
- możliwość napędu drzwi automatem „HS-Master” sterowanym za pomocą przycisku lub pilota
- możliwość zastosowania ukrytego napędu „HS e-Power”, wyposażonego w inteligentny system wykrywania przeszkód i wyłącznik obciążeniowy
- bezpieczeństwo użytkowania nawet dużych i ciężkich drzwi dzięki dostępnemu w systemie mechanizmowi „Comfort close”
- duży stopień kompatybilności z systemem MB-86 umożliwia estetyczne połączenia drzwi MB-77HS z oknami oraz stosowanie wspólnych komponentów do ich produkcji
- dostępny profil kompensujący ugięcia stropu do 20 mm oraz umożliwiający regulację poziomości górnej ościeżnicy
- szeroka gama kolorystyczna umożliwiająca aranżację drzwi w dowolny i niezależny wystrój otoczenia zarówno zewnętrznego, jak i wewnętrznego
DOSTĘPNE UKŁADY DRZWI
ESTETYCZNE POŁĄCZENIA DRZWI W ZABUDOWIE










